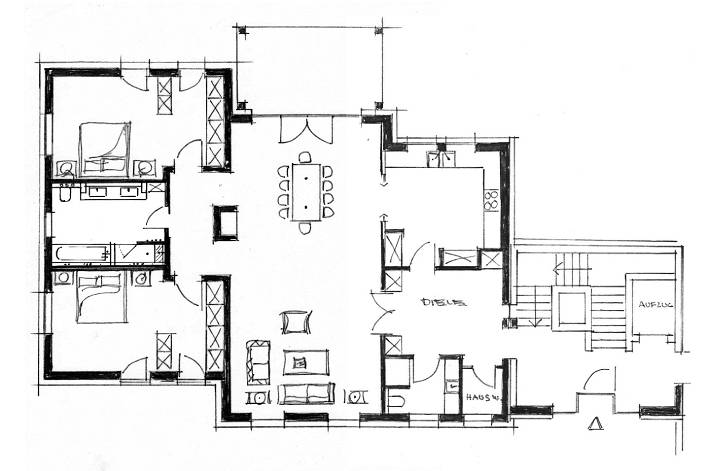
EG - links
Wohnen 2
<
>
< >
Note:
For correct viewing please enable JavaScript.